兵庫県西宮市上田西町 中古マンション

お気軽にお問い合わせください

  • 所在地:兵庫県西宮市上田西町
  • 交通:阪神「洲先」駅徒歩8分
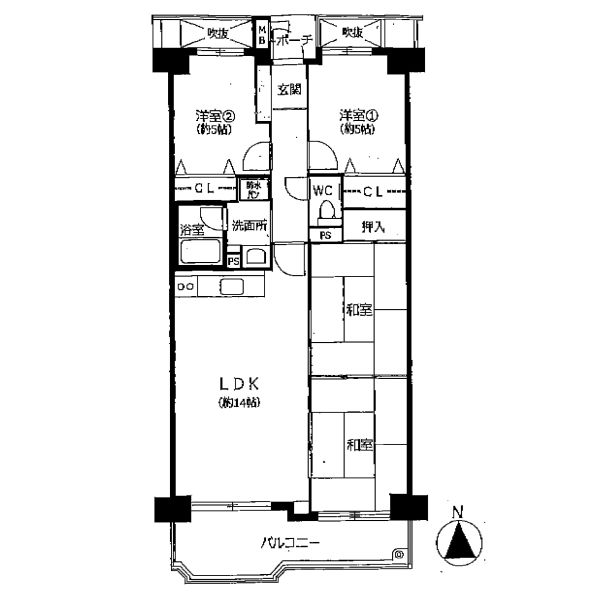
  • 構造等:RC造 11階建2階部分 4LDK
  • 占有面積:77.4m2
  • 築年:S61.6
  • 駐車場:空無
  • 小学校区:甲子園浜小
  • 中学校区:浜甲子園中
  • 価格:1,750万円
  • 室内リフォーム済♪
    南西向きで陽当り良好♪
    空家につき、即日内覧可能です♪

外観写真
間取図

この物件へのお問い合わせ

  • 物件の詳細を知りたい
  • 物件を実際に見たい
  • 資金計画のアドバイスが欲しい
  • 他の物件も紹介して欲しい


閉じる